Angerlohstr. 17

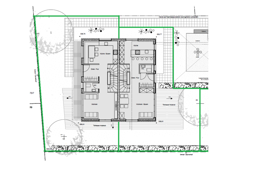
In der Angerlohstr. 17, München-Untermenzing entstehen ein 4-Fam.-Haus und ein rückwärtiges Doppelhaus mit gemeinsamer Tiefgarage.

 

Das 4-Familien-Haus wird je eine 2-Zi.- und 5-Zi.-Maisonette-Wohnung mit Hobbyraum und Gartenanteil , eine elegante 3- Zi.-Wohnung im Obergeschoss und eine sehr großzügige 4-Zi.-Dachgeschosswohnung besitzen.

 

Das rückwärtige Doppelhaus ist in zwei Hälften geteilt. Je nach Betrachtungsweise eine Doppelhaushälfte oder eine  3-Zi.-Maisonette-Garten-Wohnung. Egal, sie ist ideal für eine Familie mit dem Wunsch nach einem eigenen Garten.

Im Ergeschoss befindet sich eine 5-Zi.-Maisonette-Wohnung ... VERKAUFT

Im Erdgeschoss befindet sich eine 2-Zi.-Maisonette-Wohnung mit 90m² Gartenanteil.... VERKAUFT

Im ersten Obergeschoss befindet sich eine großzügige 3-Zi.-Wohnung ... VERKAUFT

Ein Highlight für jeden Dachgeschoss-Fan ist diese 4-Zi.-Wohnung mit einer Raumhöhe von bis zu 4,50m. Hier bekommt der Begriff „Wohnraum“ eine neue Dimension ... VERKAUFT

Ist es jetzt eine Doppelhaushälfte oder eine 3-Zi.-Maisonette-Garten-Wohnung? Egal wie man es betrachtet - es ist ein tolles Objekt.... VERKAUFT